GT55 TB GFT

CATEGORY

Ground Floor Treatments

Description

A versatile and flexible solution for a range of applications including shop fronts, entrances and ground floor framing the GT55 TB aluminium ground floor treatment system has been designed to offer high levels of performance through thermally broken screening. The system also includes an integrated range of high-traffic, anti-finger trap doors suitable for single storey applications.

Providing high levels of thermal performance, the GT55 TB aluminium ground floor treatment system has been designed in a ladder frame construction to provide a flexible solution for low rise glazing applications and can be integrated with other AluK systems. Sealed units of 6mm up to 32mm can be accommodated to improve thermal and acoustic performance.

The GT55 TB GFT performance, achieves U-values of 1.7 Uw with double glazing and 1.5 Uw with triple glazing.

GT55 TB GFT Data sheet

contact us

  • OVERVIEW
  • TECHNICAL DATA
  • CROSS SECTIONS

Design features

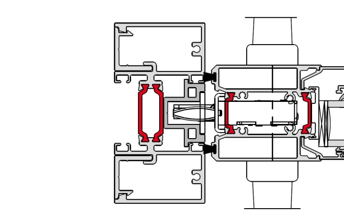
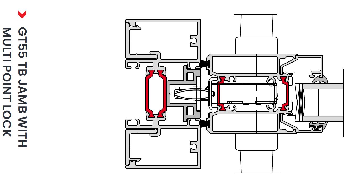
  • Pocket or bead glazed for ease of site glazing
  • 110mm frame depth to accommodate varying types of applications
  • Slim 55mm profile width for increased glazing and light transmission
  • Ladder frame construction to enable fast on-site installation
  • Fully compatible with other AluK systems

Options

  • Can accommodate 6mm - 32mm sealed units for thermal and acoustic performance
  • Wide range of hardware available offering full customisation
  • Available in single or dual colour option, polyester powder coating and anodised finishes
  Thermally broken system
Performances
U value W/m²K (Double glazing) : 1.7 W/m²k
U value W/m²K (Triple glazing) : 1.5 W/m²K
Acoustic performance (dB) : npd
Air tightness (Pa) : Class 4 (600 Pa)
Water tightness (Pa) : Class E1200 (1200Pa)
Wind load (Pa) : Class B4 (1600 Pa)
Security : Q-mark
Size limits
Frame options : 110mm
Dual color option : X
Single point locking : X
Multi-point locking : X
Electro mechanical locking : X
Glazing thickness : 6mm - 30mm