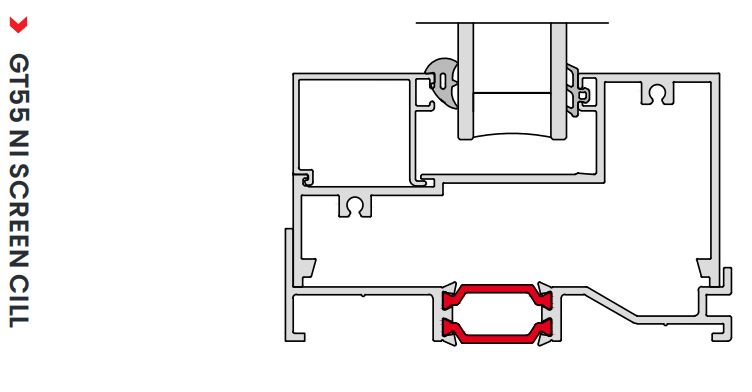
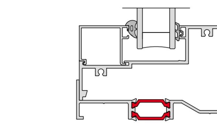
GT55 NI GFT

CATEGORY

Ground Floor Treatments

Description

The GT55 NI ground floor treatment system is a non-insulated product for internal use in applications such as shopping centres, medical centres and other areas that require significant partitioning without the need for thermal insulation. The system offers all the same benefits as the GT55 NI system but without the thermal insulation and thus at a reduced price point. The system has been designed in a ladder frame construction to provide a flexible solution for low rise applications and can be integrated with other AluK systems.

The GT55 NI GFT performance, achieves U-values of 3.0 Uw with double glazing and 2.08 Uw with triple glazing.

GT55 NI GFT Data sheet

Click this link to access the NBS Chorus page for this product and specify it for your project:

NBS GT55 NI GFT

contact us

  • OVERVIEW
  • TECHNICAL DATA
  • CROSS SECTIONS

Design features

  • 110mm frame depth to accommodate varying types of applications
  • Slim 55mm frame profile for increased glass appearance
  • Ladder frame construction to enable easy on-site installation
  • Fully compatible with other AluK systems

Options

  • Pocket or Bead glazed options for ease of site glazing
  • Accommodates 6mm - 32mm sealed units for acoustic performance
  • Wide range of hardware available offering full customisation
  • Available in single or dual colour option, polyester powder coating and anodised finishes
  Non-insulated system
Performances
U value W/m²K (Double glazing) : 3.0 W/m²k
U value W/m²K (Triple glazing) : 2.8 W/m²K
Acoustic performance (dB) : npd
Air tightness (Pa) : Class 4 (600 Pa)
Water tightness (Pa) : Class 8A (450 Pa)
Wind load (Pa) : Class 5 (2000Pa)
Features
Side hung (max weight) : 55 K
Size limits
Frame options : 110mm
Single point locking : X
Multi-point locking : X
Electro mechanical locking : X
Glazing thickness : 6mm - 28mm