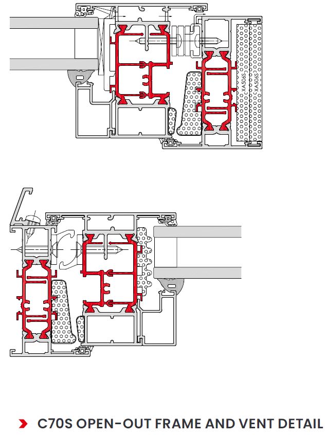
C70S Window

CATEGORY

Windows

Description

The standard, raised.  

Beautifully engineered and brilliantly functional, the C70S delivers class-leading performance with U-values of 1.3 W/m2K, advanced water tightness and a range of features to simplify fabrication and installation. 

Meeting and exceeding the key thermal, acoustic and performance demands of the architects and specifiers, the C70S is the perfect, aluminium solution for the light commercial market. 

 

C70S Data sheet

Learn more about this product.

Click this link to access the NBS Chorus page for this product and specify it for your project:

NBS C70s

contact us

  • OVERVIEW
  • TECHNICAL DATA
  • CROSS SECTIONS

Design features

  • Variable handle position 
  • Trickle ventilation 
  • 89mm Sightlines 
  • Certified under the Secured By Design scheme 
  • Tested to PAS 24 

Options

  • Glazing 24mm – 50mm 
  • Internally and externally glazed 
  • Available in a range of single or dual colour, anodised and textured finishes 
  • Three levels of insulation to choose, Standard, Partial and HI.  
  • Available in the following configurations: top hung, side hung, tilt & turn and fixed light.  
  • Available for commercial and residential applications 
  C70S Open In C70S Open Out
Performances
U value W/m²K (Double glazing) : 1.3 W/m²K 1.3 W/m²K
U value W/m²K (Triple glazing) : 1.1 W/m²K 1.3 W/m²K
Window energy rating : A rated A rated
Air tightness (Pa) : Class 4 (600 Pa Class 4 (600 Pa
Water tightness (Pa) : E900 (900 Pa) E1500 (1500 Pa)
Wind load (Pa) : Class E2400 (2400 Pa) Class E2400 (2400 Pa)
Security PAS 24 : PAS 24 & SBD PAS 24 & SBD
Secured by design : X X
Configurations
Tilt & turn : X x
Top hung : X X
Top swing : x x
Side hung : X X
Bottom hung : X X
Fixed Light : X X
Multi light : X X
french casement : x x
Punched openings : X X
Triple glazing : 24mm-50mm 24mm-50mm
Ribbon windows : X X
100 mm restriction : X X
Mullion/Transom options : X X
Size limits
Top hung (max weight) : 130KG 180KG
Side hung (max weight) : 130KG 55KG
Bottom hung (max weight) : 130KG
Fixed light (max weight) : 300kg 300kg
Features
Frame depth : 70mm 70mm
Dual color option : X X
Multi-point locking : X X
Locking handle : X X
Glazing options : X X
Glazing thickness : 24-50mm 24-50mm
Trickle ventilation : X X
Integrated with AluK’s Curtain Walling : X X
Aesthetics
Bay : x x
Chamfered : x x
Contemporary : X X
Ovolo : x x
Heritage : x x