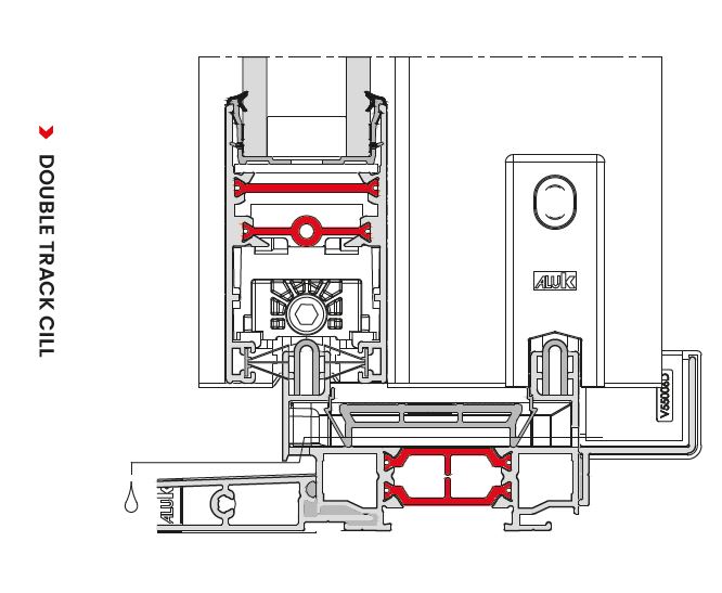
Design features
Mitre cut frame
Standard and reinforced interlock available
Glazing Gaskets available in Black
Low Threshold 22mm
Maximum weight per leaf of 200kg
Options
Glazing sizing range of 24mm - 32mm
Multipoint lock Single or dual colour with textured or anodised finishes
2 to 6 sash configurations are available
Double and Triple track options are available



